Our holiday park has three very spacious, comfortable holiday bungalows for eight people: Robin Hood, Woody Woodpecker and Peter Pan. These bungalows can also be combined with a bungalow for six people. You can then stay there with fourteen people and have two fully equipped kitchens and two living rooms at your disposal. Ideal for a holiday with a larger family or group!
Hulpmiddelen
Iedere bungalow is standaard uitgerust met vier hoog-laag bedden met Visco med decubitus preventie matrassen, een douchebrancard, een douche-toiletstoel en een passieve Mary-E of Lina 9600 tillift. In de woonkamer ligt een comfortabele zitzak met een speciale vulling. Kinderen vinden het heerlijk om er in te ontspannen en ze zijn ook te gebruiken voor een therapeutische behandeling. Lees voor meer informatie de uitgebreide omschrijving van de hulpmiddelen.
Extra hulpmiddelen, zoals een actieve tillift, hoog/laag douchestoel of een bedbox (Oslo en Softfit) kun je gewoon bijbestellen. Heb je specifieke wensen of behoeften? Overleg het met één van onze medewerkers tijdens het maken van de reservering. We helpen je graag.
Layout and inventory
Living room
In the dining area there is a dining table for eight people. The sitting area consists of a sofa for two people, a sofa for three people, an armchair and two beanbags. There is a television, a Blu-Ray player and a Hi-Fi system with CD player. Each bungalow has a Wii console; the games and controllers can be borrowed free of charge at the meeting point. French doors lead to the private terrace.
Kitchen
Fully equipped, modern kitchen with stove, dishwasher, oven, microwave, filter coffee machine, refrigerator with freezer compartment, dishes and cutlery for eight people Do you bring your own kitchen towels?
Bedrooms
Five bedrooms with a total of four standard beds and four height-adjustable beds with a Visco-anti-decubitus mattress. Each bedroom has direct access to an adapted bathroom. There are clean sheets on the beds upon arrival. Towel sets and additional bed linen can be rented from us.
Sanitary facilities
The bedrooms are connected to the adapted bathrooms. In each bungalow there are two bathrooms suitable for wheelchair users and the use of a shower trolley. There is a washing machine and a dryer in the bungalow.
Aids
Each bungalow is equipped as standard with four height-adjustable beds with Visco-anti-decubitus mattresses, a shower stretcher, a shower commode chair and a passive Mary-E or Lina 9600 lifting device. In the living room there is a comfortable beanbag with a special filling. Children love to relax in it. It can also be used for therapeutic treatment. For more information, please refer to the detailed description of the aids.
Additional aids, such as an active lifting device, a height-adjustable shower chair or a special bed (Oslo and Softfit) can be ordered. Do you have special wishes or needs? Discuss this with one of our employees while you make the reservation. We will be happy to help you.
Site plan (pdf in Dutch): Robin Hood, Woody Woodpecker, Peter Pan.
Layout and inventory
Living room
The living room has a cosy sitting area with three sofas for two people, two armchairs and a dining area with two dining tables with ten chairs. There is a television, a Blu-Ray player and a Hi-Fi system with CD player. The bungalow has a Wii console; the games and controllers can be borrowed free of charge at the meeting point. Double doors lead to your private terrace.
Kitchen
Fully equipped, modern kitchen with stove, dishwasher, oven, microwave, filter coffee machine, refrigerator with freezer compartment, dishes and cutlery for nine people Do you bring your own kitchen towels?
Bedrooms
There are seven bedrooms with a total of four standard beds, one double bed and three height-adjustable beds with a Visco-anti-decubitus mattress. There are clean sheets on the beds upon arrival. Towel sets and extra bed linen can be rented from us.
Sanitary facilities
The two spacious bathrooms are suitable for wheelchair users and the use of a shower trolley. The bungalow has a washing machine and a dryer.
Aids
Aids
Wall-E is equipped with three height-adjustable beds with Visco-anti-decubitus mattresses, a shower stretcher, an Ergo Tip 5EL shower chair and a passive Mary-E lifting device with tilt and click system. In the living room there is a comfortable beanbag with a special filling. Children find it wonderful to relax in it. It can also be used for therapeutic treatment. For more information, please refer to the detailed description of the aids.
Additional aids, such as an active lifting device, a height-adjustable shower chair or a special bed (Oslo and Softfit) can be ordered. Do you have special wishes or needs? Discuss this with one of our employees while you make the reservation. We will be happy to help you.
Site plan (pdf in Dutch):
Wall-E
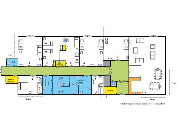
Indeling en inventaris
Woonkamer
In deze bungalow kun je met 14 personen aan tafel. Ook de zithoek is ruim opgezet met drie twezitsbanken. Er is bovendien een HydroFlex waterstoel en er staan twee vormvaste zitzakken. Er is een televisie, Blu-ray speler en een hifi-set met cd-speler. Iedere bungalow heeft een Wii-spelcomputer; de spellen en de controllers zijn gratis te leen in het MeetingPoint. Openslaande deuren naar een eigen terras.
Keuken
Complete moderne keuken met kookplaat, vaatwasser, oven, magnetron, filter koffiezetapparaat, twee koelkasten met vriesvak, servies en bestek voor veertien personen. Neem je je eigen keukenlinnen mee?
Slaapkamers
Vier slaapkamers met in totaal vijf hoog-laag bedden met een Visco anti decubitus matras en één vast tweepersoonsbed. De bedden zijn opgemaakt bij aankomst. Handdoekensets en extra bedlinnenpakketten kun je bij ons huren.
In deze bungalow kunnen de bedden NIET worden verplaatst.
Sanitair
Er is één grote sanitaire ruimte geschikt voor rolstoelgebruikers en het gebruik van een douche-badwagen. Er is een wasmachine en een wasdroger in de bungalow.
Download de plattegrond van Speedy Gonzales als pdf.

















































































