Unser Ferienpark hat drei sehr geräumige, gemütliche Ferienbungalows für acht Personen: Robin Hood, Woody Woodpecker und Peter Pan. Diese Bungalows können außerdem mit einem Bungalow für sechs Personen verbunden werden. Sie können dort dann mit vierzehn Personen wohnen und haben zwei voll ausgestattete Küchen und zwei Wohnzimmer zur Verfügung. Ideal für einen Urlaub mit einer größeren Familie oder Gruppe!
Hulpmiddelen
Iedere bungalow is standaard uitgerust met vier hoog-laag bedden met Visco med decubitus preventie matrassen, een douchebrancard, een douche-toiletstoel en een passieve Mary-E of Lina 9600 tillift. In de woonkamer ligt een comfortabele zitzak met een speciale vulling. Kinderen vinden het heerlijk om er in te ontspannen en ze zijn ook te gebruiken voor een therapeutische behandeling. Lees voor meer informatie de uitgebreide omschrijving van de hulpmiddelen.
Extra hulpmiddelen, zoals een actieve tillift, hoog/laag douchestoel of een bedbox (Oslo en Softfit) kun je gewoon bijbestellen. Heb je specifieke wensen of behoeften? Overleg het met één van onze medewerkers tijdens het maken van de reservering. We helpen je graag.
Indeling en inventaris
Wohnzimmer
Im Essbereich gibt es einen Esstisch für acht Personen. Die Sitzecke besteht aus einem Sofa für zwei Personen, einem Sofa für drei Personen, einem Sessel und zwei Sitzsäcken. Es gibt einen Fernseher, einen Blu-Ray-Player und eine Hi-Fi-Anlage mit CD-Player. Jeder Bungalow verfügt über eine Wii-Konsole; die Spiele und Controller können kostenlos am Meeting Point ausgeliehen werden. Flügeltüren führen zur privaten Terrasse.
Küche
Komplett ausgestattete, moderne Küche mit Herd, Geschirrspüler, Backofen, Mikrowelle, Filterkaffeemaschine, Kühlschrank mit Gefrierfach, Geschirr und Besteck für acht Personen. Bringen Sie Ihre eigenen Küchentücher mit?
Schlafzimmer
Fünf Schlafzimmer mit insgesamt vier Standardbetten und vier höhenverstellbaren Betten mit einer Visco-Anti-Dekubitusmatratze. Jedes Schlafzimmer hat direkten Zugang zu einem angepassten Badezimmer. Die Betten sind bei der Ankunft bezogen. Handtuchsets und zusätzliche Bettwäsche können bei uns gemietet werden.
Sanitäre Einrichtungen
Die Schlafzimmer sind mit den angepassten Badezimmern verbunden. In jedem Bungalow gibt es zwei Badezimmer, die für Rollstuhlfahrer und die Benutzung eines Duschbadewagens geeignet sind. Es gibt eine Waschmaschine und einen Trockner im Bungalow.
Hilfsmittel
Jeder Bungalow ist standardmäßig mit vier höhenverstellbaren Betten mit Visco-Anti-Dekubitusmatratzen, einer Duschliege, einem Dusch-Toilettenstuhl und einem passiven Mary-E oder Lina 9600 Hebelift ausgestattet. Im Wohnzimmer gibt es einen bequemen Sitzsack mit einer speziellen Füllung. Kinder finden es herrlich, sich darin zu entspannen. Er kann auch zur therapeutischen Behandlung eingesetzt werden. Weitere Informationen finden Sie in derdetaillierten Beschreibung der Hilfsmittel.
Zusätzliche Hilfsmittel, wie z.B. ein aktiver Hebelift, ein höhenverstellbarer Duschstuhl oder ein Spezialbett (Oslo und Softfit) können bestellt werden. Haben Sie spezielle Wünsche oder Bedürfnisse? Besprechen Sie dies mit einem unserer Mitarbeiter, während Sie die Reservierung vornehmen. Wir helfen Ihnen gerne weiter.
Lageplan (pdf):
Robin Hood, Woody Woodpecker, Peter Pan
Aufteilung und Inventar
Wohnzimmer
Das Wohnzimmer hat eine gemütliche Sitzecke mit drei Sofas für zwei Personen, zwei Sesseln und einen Essbereich mit zwei Esstischen mit zehn Stühlen. Es gibt einen Fernseher, einen Blu-Ray-Player und eine Hi-Fi-Anlage mit CD-Player. Der Bungalow verfügt über eine Wii-Konsole; die Spiele und Controller können kostenlos am Meeting Point ausgeliehen werden. Über Flügeltüren gelangen Sie zu Ihrer privaten Terrasse.
Küche
Komplett ausgestattete, moderne Küche mit Herd, Geschirrspüler, Backofen, Mikrowelle, Filterkaffeemaschine, Kühlschrank mit Gefrierfach, Geschirr und Besteck für neun Personen. Bringen Sie Ihre eigenen Küchentücher mit?
Schlafzimmer
Es gibt sieben Schlafzimmer mit insgesamt vier Standardbetten, einem Doppelbett und drei höhenverstellbaren Betten mit einer Visco-Anti-Dekubitusmatratze. Die Betten sind bei der Ankunft bezogen. Handtuchsets und zusätzliche Bettwäsche können bei uns gemietet werden.
Sanitäre Einrichtungen
Die zwei geräumigen Badezimmer sind für Rollstuhlfahrer und die Benutzung eines Duschbadewagens geeignet. Der Bungalow verfügt über eine Waschmaschine und einen Trockner.
Hilfsmittel
Wall-E ist mit drei höhenverstellbaren Betten mit Visco-Anti-Dekubitusmatratzen, einer Duschliege, einem Ergo Tip 5EL Duschstuhl und einem passiven Mary-E Hebelift mit Kippjoch und Klicksystem ausgestattet. Im Wohnzimmer gibt es einen bequemen Sitzsack mit einer speziellen Füllung. Kinder finden es herrlich, sich darin zu entspannen. Er kann auch zur therapeutischen Behandlung eingesetzt werden. Weitere Informationen finden Sie in der detaillierten Beschreibung der Hilfsmittel.
Zusätzliche Hilfsmittel, wie z.B. ein aktiver Hebelift, ein höhenverstellbarer Duschstuhl oder ein Spezialbett (Oslo und Softfit) können bestellt werden. Haben Sie spezielle Wünsche oder Bedürfnisse? Besprechen Sie dies mit einem unserer Mitarbeiter, während Sie die Reservierung vornehmen. Wir helfen Ihnen gerne weiter.
Lageplan (pdf):
Wall-E
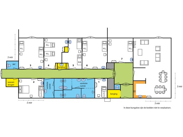
Indeling en inventaris
Woonkamer
In deze bungalow kun je met 14 personen aan tafel. Ook de zithoek is ruim opgezet met drie twezitsbanken. Er is bovendien een HydroFlex waterstoel en er staan twee vormvaste zitzakken. Er is een televisie, Blu-ray speler en een hifi-set met cd-speler. Iedere bungalow heeft een Wii-spelcomputer; de spellen en de controllers zijn gratis te leen in het MeetingPoint. Openslaande deuren naar een eigen terras.
Keuken
Complete moderne keuken met kookplaat, vaatwasser, oven, magnetron, filter koffiezetapparaat, twee koelkasten met vriesvak, servies en bestek voor veertien personen. Neem je je eigen keukenlinnen mee?
Slaapkamers
Vier slaapkamers met in totaal vijf hoog-laag bedden met een Visco anti decubitus matras en één vast tweepersoonsbed. De bedden zijn opgemaakt bij aankomst. Handdoekensets en extra bedlinnenpakketten kun je bij ons huren.
In deze bungalow kunnen de bedden NIET worden verplaatst.
Sanitair
Er is één grote sanitaire ruimte geschikt voor rolstoelgebruikers en het gebruik van een douche-badwagen. Er is een wasmachine en een wasdroger in de bungalow.
Download de plattegrond van Speedy Gonzales als pdf.

















































































